根据《广东省城乡规划条例》规定,现将《建设工程规划许可证》审批事项进行批前公示,公开征询意见。
审批单位:徐闻县自然资源局
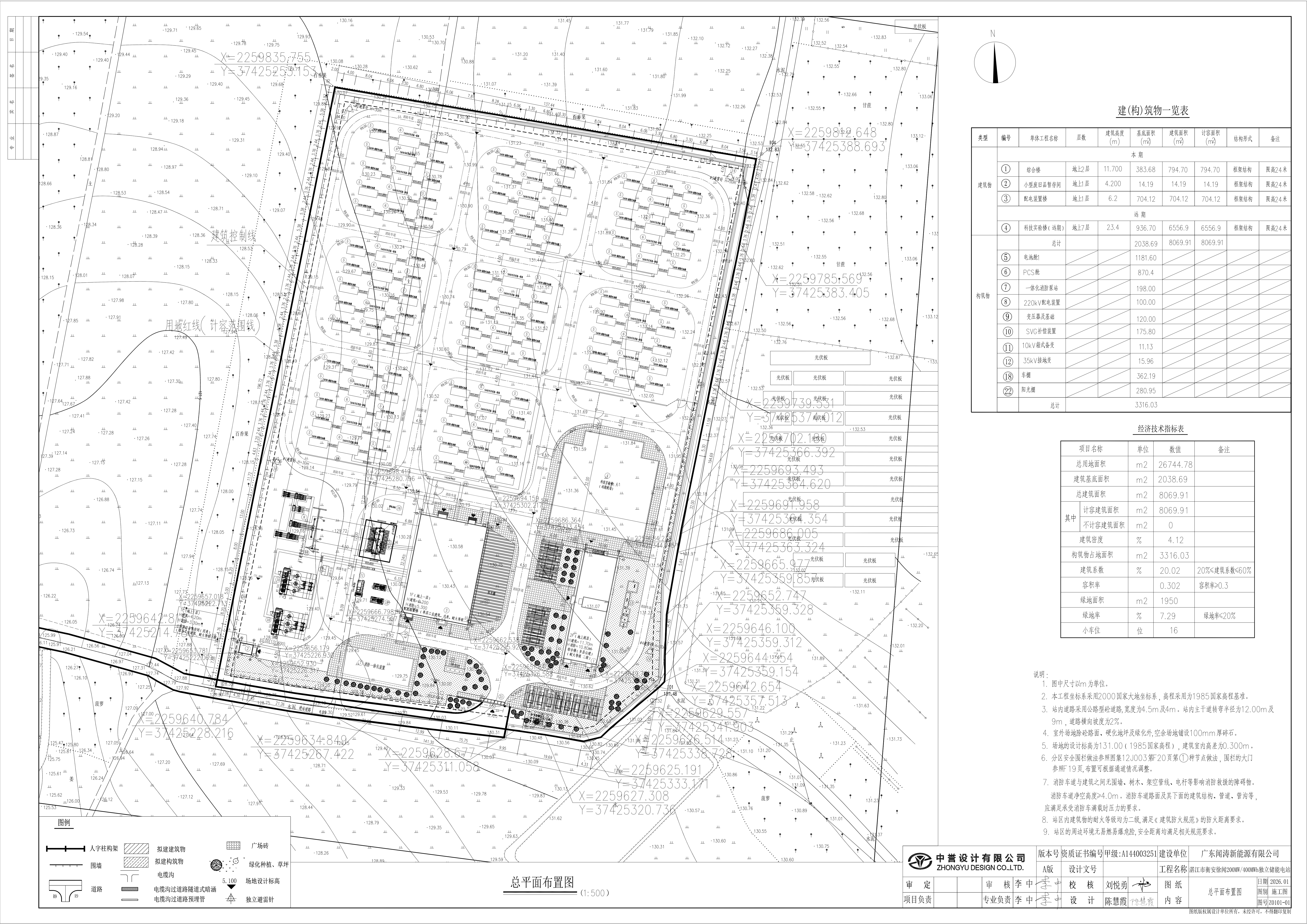
审批项目:湛江市衡安徐闻200MW/400mwh独立储能电站项目
项目地址:徐闻县曲界镇友好农场东北侧
建设规模:总建筑面积8069.91平方米,其中:综合楼二层建筑面积794.7平方米,小型废旧品暂存间一层建筑面积14.19平方米;配电装置楼一层建筑面积704.12平方米;科技实验楼七层建筑面积6556.9平方米。
公示期限:2026年2月24日至2026年3月5日
申请人、利害关系人权利:依法享受有陈述权、申辩权和听证权。可通过信函方式反馈意见或者提出听证申请。
反馈方式:信函反馈,请至件徐闻县城东大道北段徐闻县自然资源局规划建设管理股(邮编:524100)。
联系电话:0759-4886392
有效反馈期限:2026年2月24日至2026年3月5日。信件邮戳日时间不应超过反馈期限最后一天的24:00,逾期视为无效,不予参考。
反馈须知:必须注明案件编号和真实姓名、联系电话、联系地址、邮政编码,如反馈信息不准确或不完整,导致无法核实有关情况的视为无效。
徐闻县自然资源局
2026年2月24日
建筑总平面图




