根据《广东省城乡规划条例》规定,现将《建设用地规划许可证》审批事项进行批前公示,公开征询意见。
审批单位:徐闻县自然资源局
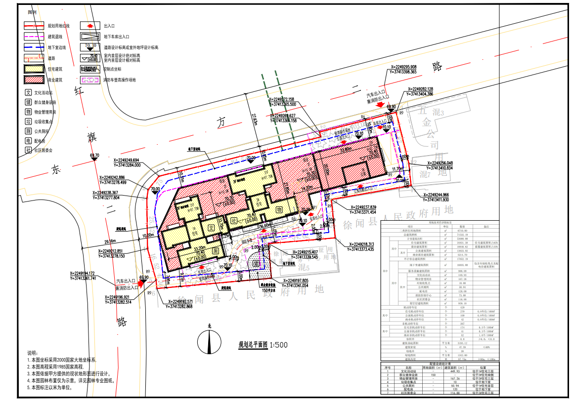
申请单位:徐闻县百年春房地产有限公司
审批项目:金源豪苑
项目地址:徐闻县徐城红旗二路东侧(徐城东方二路南侧)
用地规划条件:容积率不高于8不低于6;建筑限制不高于100米不低于80米;建筑密度不高于60%;绿地率不低于20%。
公示期限:2026年1月28日至2026年2月7日
申请人、利害关系人权利:依法享受有陈述权、申辩权和听证权。可通过信函方式反馈意见或者提出听证申请。
反馈方式:信函反馈,请至件徐闻县城东大道北段徐闻县自然资源局(邮编:524100)。联系人:规划建设管理股
联系电话:0759-4886392
有效反馈期限:2026年1月28日至2026年2月7日。信件邮戳日时间不应超过反馈期限最后一天的24:00,逾期视为无效,不予参考。
反馈须知:必须注明案件编号和真实姓名、联系电话、联系地址、邮政编码,如反馈信息不准确或不完整,导致无法核实有关情况的视为无效。
徐闻县自然资源局
2026年1月28日
项目宗地图

项目总平面图




