根据《广东省城乡规划条例》规定,现将《建设工程规划许可证》审批事项进行批前公示,公开征询意见。
审批单位:徐闻县自然资源局
申请单位:徐闻县城市管理和综合执法局
申请地址:徐闻县城区
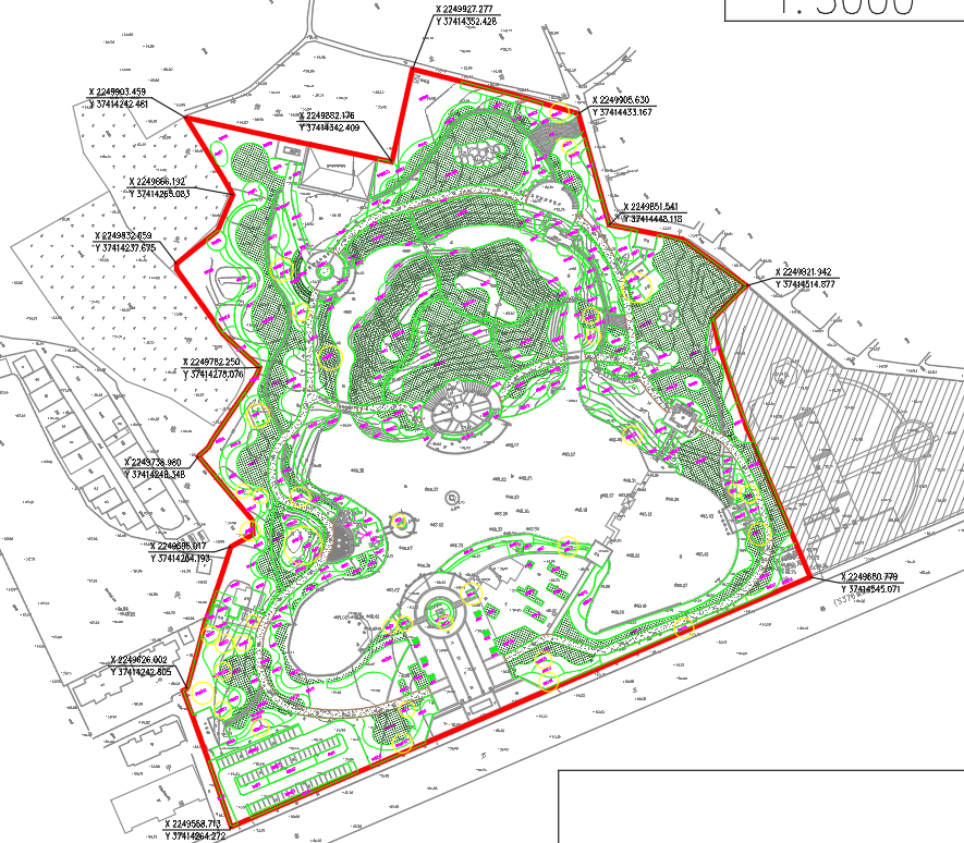
申请项目:徐闻县城区综合治理工程建设项目EPC总承包城市节点综合整治及修复-梅溪公园
建设规模:修复梅溪公园;
公示期限:2023年12月22日至2024年1月2日
申请人、利害关系人权利:依法享受有陈述权、申辩权和听证权。可通过信函方式反馈意见或者提出听证申请。
反馈方式:信函反馈,请至件徐闻县徐城城东大道北段徐闻县自然资源局规划建设管理股(邮编:524100)。
联系电话:0759-4886392
有效反馈期限:2023年12月22日至2024年1月2日。信件邮戳日时间不应超过反馈期限最后一天的24:00,逾期视为无效,不予参考。
反馈须知:必须注明案件编号和真实姓名、联系电话、联系地址、邮政编码,如反馈信息不准确或不完整,导致无法核实有关情况的视为无效。
徐闻县自然资源局
2023年12月22日
建设工程规划定点图如下




